镇变电所(一台主变)一次部分初步设计(含CAD图)

镇变电所(一台主变)一次部分初步设计(含CAD图)(任务书,开题报告,论文说明书16000字,CAD图4张)
摘 要
本次毕业设计为110kv降压变电站的毕业设计。我们通过对原始资料分析,对负荷的有关技术参数,在满足变电站的可靠性,灵活性,经济性等方面我们选择了3个电压等级,分别为110kV,35KV和10KV。在本次毕业设计中,我们需要对该地区的整体负荷进行估算,对变压器型号进行选择,还有电气主接线,三相短路电流进行计算,其他电气设备的选择。我们设计变电站要可靠,又要划算。
本次毕业设计由两部分,一部分是说明书,就是为变压器,断路器,隔离开关等设备的选择作为理论依据:另一部分就是计算书,要有三相短路电流,电气设备选择与校验等,还要画出电气主接线图和其他图纸。
关键词:变电站 电气主接线 短路电流计算 电气设备
Abstract
The graduation design of 110 kv step-down transformer substation of graduation design. We through analyzing the raw data, the load of the related technical parameters, to meet the reliability of transformer substation, flexibility, economy and other aspects, we select three voltage grade respectively 110 kv, 35 kv and 10 kv. In this graduation design, we need to load an estimate for the region as a whole, to choose of transformer model, and the main electrical wiring, three-phase short-circuit current calculation, the choice of other electrical equipment. We design the transformer substation to be reliable and cost-effective. [资料来源:http://Doc163.com]
This graduation design consists of two parts, part specifications, for transformer, circuit breaker, disconnecting switch as a theory evidence for the selection of equipment such as: the other part is the calculation, for a three phase short circuit current, electrical equipment selection and calibration, etc., to draw the main electrical wiring diagram and other drawings.
Keywords:Electrical equipment for substation ,main electrical wiring, short circuit current ,calculation
本设计概论
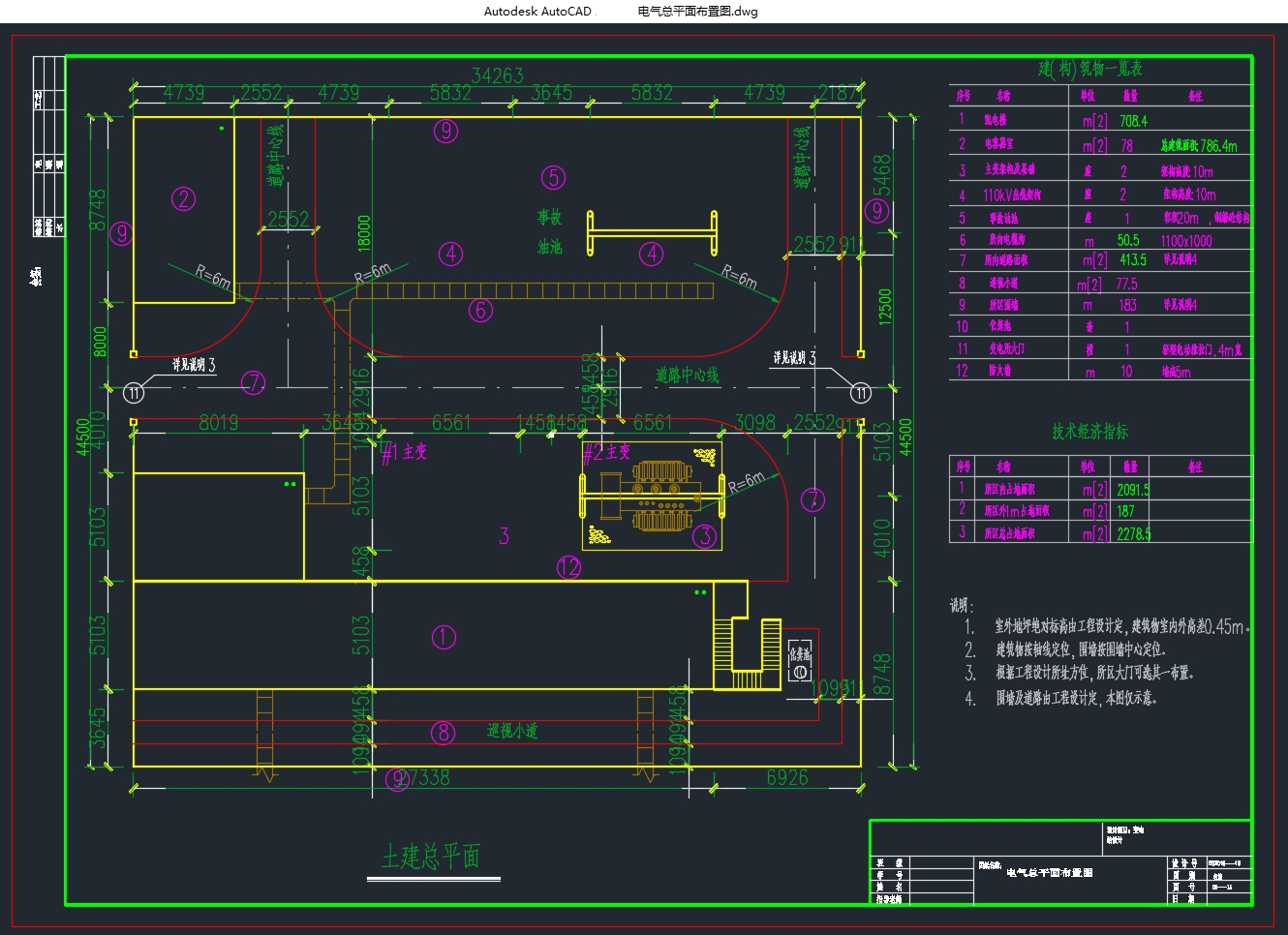
本次毕业设计我选择在XXX镇,它是一个降压变电站,负责从电网接受电能然后传输给用户,它的电压等级有3个,分别为110kv,35kv,10kv。110KV有6个进线回路,采用双母线接线;35KV有10回出线,采用单母线接线;10KV有12回路出线,采用单母线接线。
这次毕业设计我们需要计算短路电流来进行设备型号的选择,并同时对变电站用电、防雷保护设计、主变压器继电保护与控制等进行了初步设计。
[来源:http://Doc163.com]





目 录
摘 要 I
Abstract II
第一章 绪论 1
1.1电力系统概述 1
1.2变电站简介 2
1.2.1变电站基本原理 2
1.2.2变电站的分类 3
1.2.3变电站地方的选择 4
1.3原始资料简介 5
1.3.1本设计概论 5
1.3.2兴化市北安丰镇地理情况 5
1.4本课题的研究任务 5
第二章 电气主接线方式的选择 7
2.1电气主接线设计原则 7
2.2电气主接线设计的基本要求 7
2.3电气主接线方案的确定 8
第三章 主变压器的选择 13
3.1变压器台数的选择 13
3.2变压器容量的选择 13
3.3主变压器选型 15
第四章 短路电流计算 17
4.1电力系统电流短路原因 17 [资料来源:http://www.doc163.com]
4.2电力系统电流短路后果 17
4.3电力系统短路电流计算的目的 17
4.4 电力系统短路电流计算条件 17
4.5短路电流的限流措施 18
4.6短路电流计算 19
第五章 主要电气设备选择 24
5.1电器选择的一般要求 24
5.1.1一般原则 24
5.1.2技术条件 24
5.1.3环境条件 27
5.2导体的选择和校验 27
5.2.2 35kV母线选择校验 29
5.2.3 10kV出线电缆选择校验 29
5.3 断路器的选择和校验 30
5.3.1 110kV断路器的校验 30
5.3.2 35KV断路器的选择 31
5.3.3 10KV断路器的选择 31
5.4 隔离开关选择 32
5.4.1 110kV隔离开关选择 32
5.4.2 35kV隔离开关的选择 32
5.4.3 10kV隔离开关的选择 33 [资料来源:www.doc163.com]
5.5 电压互感器的选择 33
5.5.1 35kV电压互感器的选择 33
5.5.2 10kV电压互感器的选择 34
5.6 电流互感器的选择 34
5.6.1 110kV电流互感器的选择和校验 34
5.6.2 35kV电流互感器的选择 35
5.6.3 10kV电流互感器的选择 35
5.7电气设备一次设备选择结果 35
5.7.1 110kV主要电气设备选择 35
5.7.2 35KV主要电气设备选择 36
5.7.3 10KV主要电气设备选择 37
第六章 变电站配电布置和防雷保护 38
6.1变电站配电布置 38
6.2变电所防雷保护及接地装置 38
6.2.1 避雷针的保护计算 38
6.2.2直击雷过电压保护 38
6.2.3雷电载入波的过电压保护 40
6.2.4 防雷接地 40
结束语 42
参考文献 43
[资料来源:https://www.doc163.com]
致谢 44
[资料来源:http://Doc163.com]
