炼钢脱硫液压系统设计(含CAD图)

炼钢脱硫液压系统设计(含CAD图)(任务书,开题报告,外文翻译,论文说明书13500字,CAD图6张)
2.1设计的技术要求
1) 炼钢生产中主要是指铁水在进入转炉之前的脱硫处理;KR法是利用机械搅拌作用使脱硫剂与铁水混匀达到脱硫目的。
2) 搅拌器浸入铁水深度400~700mm,搅拌时间为6-9分钟,转速90~120转/分。
3) 加入脱硫剂时转速比所需速度应低5转,距投料剩余100kg时,均匀增速达所需速度,在搅拌结束前3分钟实施必要的均匀减速,但减速后下限转速应≥78转/分。
4) 搅拌装置上下升降高度为6m,需要加锁定装置保证中间位置可靠停止。
5) 各个部分运行均应操作灵活,速度均应可调,起动、停止及时可靠。
6) 液压系统由中心液压站集中供油,各用油设备之间管路应能隔离,确保各设备的运行、检修互不干扰。环境温度最高超过100℃。
[资料来源:Doc163.com]




目录
第1章 绪论 1
1.1设计背景 1
1.2喷吹法与KR法比较 1 [资料来源:http://doc163.com]
第2章 总体方案设计 3
2.1设计的技术要求 3
2.2要求完成的主要任务 3
2.3要求分析及措施 3
2.3.1设备分析 3
2.3.2搅拌系统分析 5
2.3.3升降系统的分析 6
2.3.4固定支撑系统的分析 6
第3章 确定液压系统主要参数 7
3.1搅拌系统主要参数确定 7
3.1.1搅拌系统设计参数 7
3.1.2搅拌系统初选设计压力 7
3.1.3搅拌系统液压马达参数 8
3.2升降系统主要参数确定 10
3.2.1升降系统设计参数 10
3.2.2卷扬机构设计计算 10
3.2.3升降系统初选设计压力 11
3.2.4升降系统液压马达参数 11
3.3固定支撑系统主要参数确定 12
3.3.1固定支撑系统设计参数 12
3.3.3固定支撑系统液压缸参数 13
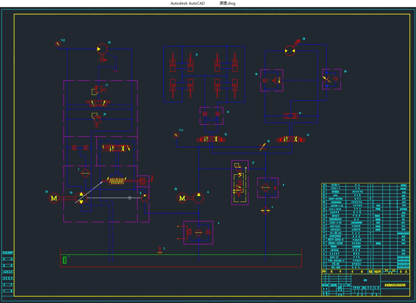
第4章 拟订液压系统原理 15
4.1液压回路方案制定 15
4.1.1液压调速方式的拟定 15
4.1.2油路循环方式的拟定 16
4.1.3动力源方案的拟定 17
4.1.4压力控制方案的制定 17
4.1.5液压回路方案 18
4.2液压原理图绘制 18
第5章 液压元件的选择 21
5.1液压泵的选择 21
5.1.1搅拌系统液压泵的选择 23
5.1.2升降、固定支撑系统液压泵的选择 25
5.2液压阀的选择 26
5.3液压辅件的设计选型 27
5.3.1液压油的规格 27
5.3.2油箱的计算 27
5.3.3管道尺寸的确定 28
5.3.4油位计的选型 30
5.3.5压力表的选择 30
5.3.6过滤器的选型 30
5.3.7冷却器的选型 31
第6章 系统性能验算 32 [版权所有:http://DOC163.com]
6.1液压系统压力损失验算 32
6.2热平衡验算 33
第7章 可行性分析 35
第8章 总结 36
参考文献 37
致谢 38 [资料来源:Doc163.com]
下一篇:MQ4040门座式起重机转台结构设计(含CAD图,solidworks三维图)
