四特种车轮驱动和转向液压系统设计(含CAD图)

四特种车轮驱动和转向液压系统设计(含CAD图)(任务书,开题报告,外文翻译,论文说明书13800字,CAD图6张)
摘要
随着科学技术的发展,特种车辆已经成为人类社会不可缺少的探索工具之一,而转向和行走系统则是特种车辆的重中之重。传统的转向、行走系统存在一系列弊端,例如效率低下、功能单一,已经无法满足人们的需求。
本课题研究的内容是特种车辆的四轮驱动和液压转向系统,针对当前所面临的问题,并且分析了国内外的发展现状和车辆的受力特点,提出了一种新型的转向、行走系统。本课题所设计的系统有一系列优点,例如传动平稳、可靠,动作灵活等,可以满足人们的需求。此外,和传统的系统相比,效率也有了一定的提高,符合低碳环保的精神理念,具有十分广阔的应用前景。
关键词:特种车 四轮驱动 转向 液压系统
Abstract
With the development of science and technology,special vehicles has become one of indispensable tools to explore in human society.The steering and running system is a top priority for special vehicles.The conventional steering and running system has a series of drawbacks,such as low efficiency,single function and can not meet people’s needs.
[资料来源:https://www.doc163.com]
Research contents of this paper is four-wheel driving and hydraulic steering system of special vehicles.For the current problems,I analyze the development of the steering and running system at home and abroad and force characteristics of the vehicles,put forward a new type of the steering and running system.The system designed of this paper has a series of advantages,such as smooth transmission,reliable and flexible operation and so on,can meet people’s needs.In addition,new steering and running system has higher efficiency compared with the traditional systems,in line with the spirit of low carbon environmental protection, and has a very broad application prospects.
Key words: special vehicles, four-wheel drive, steering, hydraulic system
3.1 转向车轮的受力计算
根据任务说明书的相关要求,设计的系统四轮转向达±45°,可以实现车辆原地旋转,斜行等多转向模式。因此,车轮的转向受力为单论偏转转向阻力矩。根据任务的要求车辆自重约25T,故每个车轮受到的载荷为6.25T。 [资料来源:www.doc163.com]
表3-1
轮胎相关参数的选择
轮胎直径 1000mm 轮胎宽度 400mm
轮胎类型 工程车辆(OTR型) 轮胎载重指数 253型(6.5T/每轮)
速度等级 A2型(10km/h) 轮胎压强 0.5MPa
表3-2 各类设备常用的工作压力
设备类型 压力范围/MPa 压力等级 说明
机床、压铸机、汽车 <7 低压 低噪声、高可靠性
农业机械、工矿机械、工程机械、搬运机械、冶金机械等
[资料来源:http://www.doc163.com]




[版权所有:http://DOC163.com]

目 录
第1章 绪论 1
1.1 项目开发的背景及意义 1
1.2 国内外的发展现状 1
1.2.1 汽车转向系统发展现状 1
1.2.2 汽车驱动方式发展现状 2
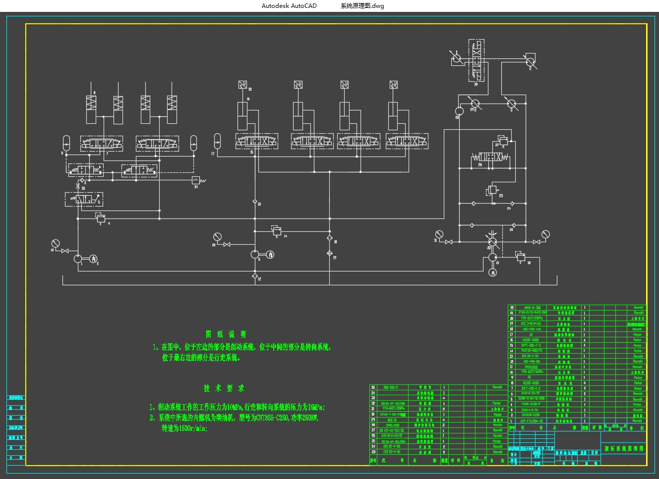
第2章 系统原理图的拟定 3
2.1 选择系统的类型 3
2.2 选择液压系统基本回路 3
2.2.1. 调速方式的选择 3
2.2.2 液压动力源的选择 3
2.2.3 调压方式的选择 4
2.2.4 换向方式的选择 4
2.3 液压元件的选择 4
第3章 转向液压系统 5
3.1 转向车轮的受力计算 5 [资料来源:https://www.doc163.com]
3.2 转向液压缸的选型 6
3.2.1 液压缸内径与与压力的计算 6
3.2.2 液压缸流量的计算 7
3.3转向液压泵的选型 8
3.3.1 液压泵压力的计算 8
3.3.2 液压泵流量的计算 8
3.4 液压阀的选型 9
3.4.1 溢流阀的选择 9
3.4.2 换向阀的选择 9
3.4.3 单向阀的选择 9
3.5 辅助元件的选择与设计 9
3.5.1 管件的选择 9
3.5.2 蓄能器的选择 10
第4章 行走液压系统的计算及其设计 12
4.1 驱动轮的受力分析及其计算 12
4.2 驱动轮的液压马达的分析及其计算 13
4.2.1 行走系统所需功率的计算 13
4.2.2 液压马达流量的计算 13
4.2.3 分流液压马达流量的计算与选型 14
[资料来源:http://www.doc163.com]
4.3行走液压泵的选型 14
4.3.1 液压泵压力的计算 14
4.3.2 液压泵流量的计算 14
4.3.3 液压泵功率的计算 14
4.3.4 补油液压泵的选择 15
4.4 液压阀的选型 15
4.4.1 溢流阀的选择 15
4.4.2 换向阀的选择 15
4.5 辅助元件的选择与设计 15
4.5.1 管件的选择 16
4.5.2 冷却器的选择 16
第5章 制动液压系统的计算及其设计 17
5.1 车轮的制动力分析与计算 17
5.2 制动液压缸的选型 17
5.2.1 液压缸内径与与压力的计算 17
5.2.2 液压缸流量的计算 17
5.3 制动液压泵的选型 18
5.3.1 液压泵压力的计算 18
5.3.2 液压泵流量的计算 18
[来源:http://www.doc163.com]
5.3.3 液压泵功率的计算 18
5.4 液压阀的选型 19
5.4.1 溢流阀的选择 19
5.4.2 换向阀的选择 19
5.4.2 单向阀的选择 19
5.5 辅助元件的选择与设计 19
5.5.1 管件的选择 19
5.5.2 蓄能器的的选择 20
5.6 液压系统性能验算 20
5.6.1 系统压力损失的验算 20
5.6.2 系统总效率的验算 20
5.6.3 液压系统发热温升的计算 21
第6章 油箱的计算与选择 23
6.1油箱类型的选择 23
6.2 油箱容积的确定 23
6.3 油箱油口的计算 23
6.4 油箱辅件的选择 24
6.4.1 空气滤清器 24
6.4.2 液位计的选用 24
6.4.3 过滤器的选择 24 [资料来源:http://www.doc163.com]
6.4.4 油液加热器的选择 24
第7章 液压系统原动机的选择 25
7.1 液压系统经济性的分析 25
第8章 结论与展望 27
8.1 结论 27
8.2 展望 27
参考文献 28
致谢 29 [来源:http://Doc163.com]
上一篇:63T-M平头塔式起重机设计—塔身与附墙设计(含CAD图)
