某高层综合办公楼给水排水设计(含CAD图)

某高层综合办公楼给水排水设计(含CAD图)(任务书,开题报告,外文翻译,论文计算书12000字,CAD图16张)
摘要
市政给水管网常年可提供的稳定压力为0.27MPa,建筑高度为73.830m。
本建筑属于一类高层建筑,设计内容包括:(1) 给水、排水、消火栓及自动喷淋、雨水系统的选择以及计算;(2)主要设备的选型与计算。
给水系统采用低区为一层至四层,采用城市管网直接供水。五层以上采用地下室变频水泵机组联合分区供水,其中5~10层为中区,11~17层为高区。消防给水部分采用水箱和水泵联合供水系统,火灾初期10min消防用水量由屋顶水箱供应,火灾10min后消防用水由湿式报警阀延时器后的压力开关自动启动消防水泵供应。室外消火栓用水量为30L/s,室内消火栓用水量为40 L/s,每根竖管的最小流量是15 L/s,每支水枪的最小流量是5 L/s,火灾延续时间为2h。按《高层建筑民用设计防火规范》要求,采用两股水柱,每股流量qxh=5.2L/s,消火栓保护半径为24.5米。消火栓间距不超过19m。
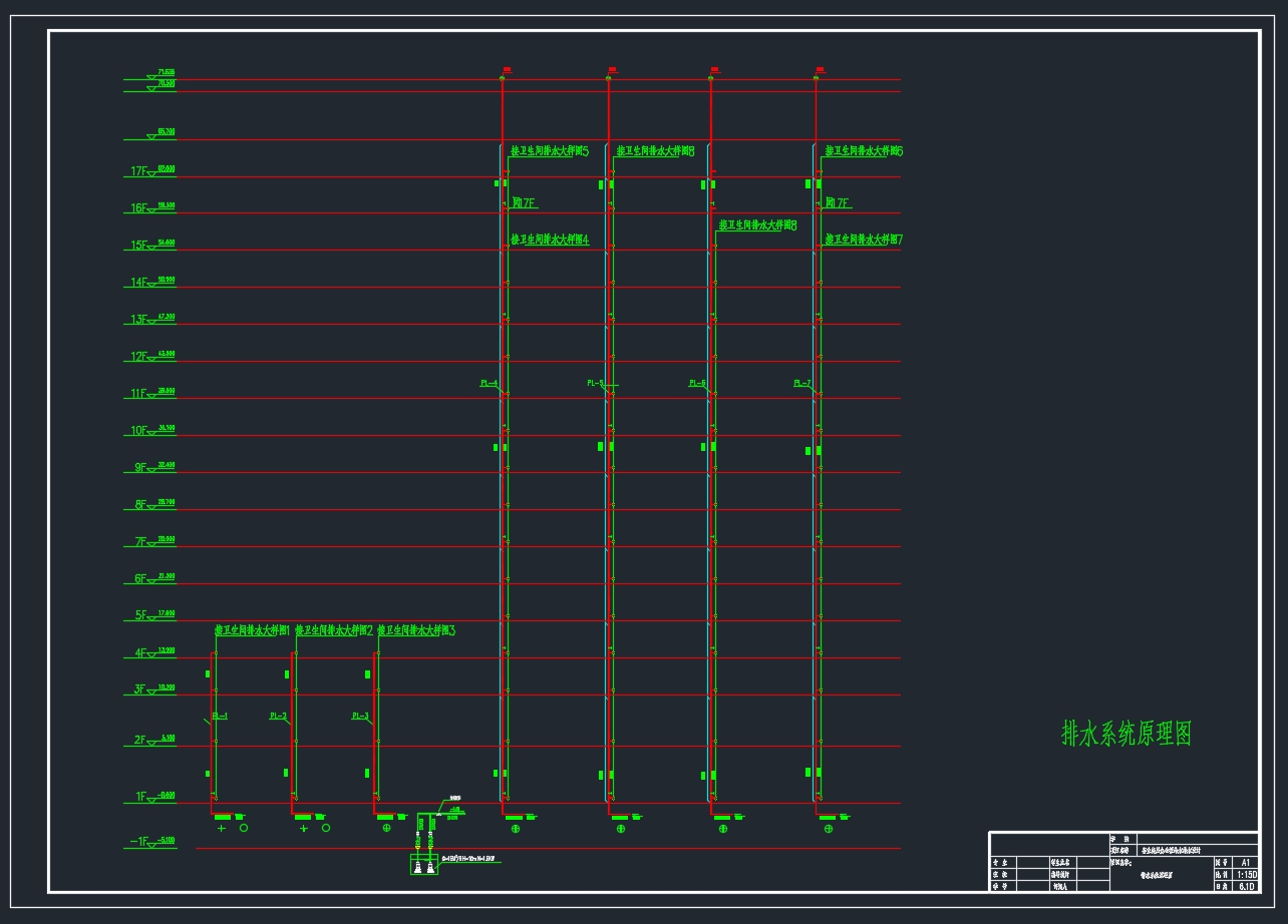
排水系统采用传统排水方式:卫生器具排水管穿越楼板进入下层再接入立管。卫生间污废水合流.采用UPVC排水立管排水,采用传统的排水方式。屋面雨水均单独设立管排放,卫生器具穿越楼板进入下层排水排放,各管设伸顶通气管通气,各排水干管在地下调机隔板雨水也经收集后统一排放。
[资料来源:https://www.doc163.com]
自动喷淋系统采用湿式自动喷水灭火系统,每个喷头的保护面积不超过11.52m2
【关键词】:室内给水系统 消火栓系统 自动喷淋系统 排水
High-rise office building of Jia Ye water supply and drainage design
【Summary】:Municipal water supply network perennial stable pressure 0.27MPa, building height of 73.830m.
The building belongs to a class of high-rise buildings, design elements include: (1) the selection and calculation of water supply, drainage, fire hydrants and automatic sprinkler, rainwater systems; (2) Selection and calculation of the main equipment.
The water supply system with low area for Levels 1 to 4, the direct water supply of the city's official website. More than five basement frequency pump unit joint district water supply, 5 to 10 layers in the area, 11 to 17 layers of the upper zone. Fire water supply part of the water tank and pump combined water supply system, initial fire the 10min fire water supply by the rooftop water tanks, fire 10min fire water wet alarm valve delay after pressure switch automatically starts the fire pump supply. Outdoor fire hydrant water use to 30L / s, indoor fire hydrant water for 40 L / s, each standpipe minimum flow rate of 15 L / s, each water gun minimum flow rate of 5 L / s, fire duration of 2 h. "Civilian high-rise building fire protection design" requirements, two jets of water, the per flow qxh = 5.2L / s, fire hydrant protection radius of 24.5 meters. Fire hydrant spacing does not exceed 19m. [版权所有:http://DOC163.com]
Drainage system with the traditional drainage patterns: sanitary ware drain through the floor into the lower access riser. Toilet sewage and waste confluence. UPVC drainage riser drainage, to traditional drainage patterns. Roof rainwater set up a separate pipe emissions, sanitary ware through the floor into the lower drainage emissions, each tube set stretch top snorkel ventilation, each drainage mains down in the machine partition rainwater collected after being released.
Automatic sprinkler system wet sprinkler system, each nozzle protection area not exceeding 11.52m2
【key words】 :Indoor water supply system hydrant system sprinkler system drainage
工程概况
该建筑为一综合办公楼。建筑高度为73.830米,地下一层为设备用房,地上十七层为办公用房,设计内容包括该办公楼给水系统、排水系统、雨水系统、消火栓和自动喷淋消防系统。室外市政给水管的管径为250mm; 地下埋深1.90m,管网提供的稳定压力为0.27MPa。




[资料来源:Doc163.com] 

计算书目录
摘要................................................................2
Abstract............................................................3
第一章 给排水工程设计任务书.........................................7
1.1工程概况.....................................................7
1.2设计依据.....................................................7
1.3设计内容.....................................................8
1.4设计图纸.....................................................8
1.5设计进度计划.................................................9 [资料来源:www.doc163.com]
第二章 设计说明书..................................................10
2.1室内给水工程................................................10
2.1.1给水方式选择...........................................10
2.1.2给水系统立管的组成.....................................10
2.1.3给水系统的组成.........................................10
2.1.4给水管道布置与安装.....................................10
2.2室内排水工程.................................................11
2.2.1排水方式选择...........................................11
2.2.2给水系统的组成.........................................11
2.2.3排水管道及设备安装要求.................................11
2.3室内消火栓...................................................12
2.3.1消火栓系统设计..........................................12
2.3.2消火栓给水管道的安装与布置..............................12
2.4自动喷淋工程..................................................13
2.4.1基本设计数据............................................13
[来源:http://www.doc163.com]
2.4.2喷头的布置与选用........................................13
2.5管道及设备安装................................................14
2.5.1给水管道布置与安装......................................14
2.5.2排水管道的安装要求......................................14
2.5.3消防管道及设备安装......................................15
第二章 建筑给水排水系统计算.........................................16
3.1室内给水系统计算.............................................16
3.1.1总用水量计算............................................16
3.1.2中区给水系统计算........................................16
3.1.3高区给水系统计算........................................17
3.1.4水力计算................................................17
3.1.5地下贮水池容积..........................................22
3.1.6水表的选择..............................................22
3.1.7校核市政管道压力........................................22
3.1.8中区给水系统选泵........................................22
[资料来源:https://www.doc163.com]
3.1.4高区给水系统选泵........................................23
3.1.4生活贮水池..............................................23
3.2消火栓系统的计算..............................................24
3.2.1设计参数................................................24
3.2.2消火栓系统的计算........................................24
3.2.3消火栓泵的选择..........................................27
3.2.4减压设施................................................28
3.2.5消防水箱................................................28
3.2.6水泵接合器..............................................29
3.2.7增压设施................................................29
3.3室内自动喷水灭火系统的计算....................................30
3.3.1基本设计数据............................................30
3.3.2喷头的选用与布置........................................30
3.3.3设计计算................................................30
3.3.4喷淋泵的选择............................................32 [来源:http://www.doc163.com]
3.3.5消防贮水池..............................................33
3.3.6增压设施的选择..........................................33
3.3.7水泵接合器的选择........................................34
3.4室内排水系统的计算............................................35
3.4.1排水横支管的计算........................................35
3.4.2排水立管管径的确定.......................................41
3.4.3化粪池容积的计算.........................................43
3.5雨水系统的设计与计算...........................................44
3.5.1设计说明..................................................44
3.5.2降雨强度..................................................44
3.5.3雨水立管的布置............................................43
参考文献...............................................................47
总结...................................................................48 [资料来源:https://www.doc163.com]
