十层南京某研发中心框架—剪力墙结构设计(含建筑图结构图)

十层南京某研发中心框架—剪力墙结构设计(含建筑图结构图)(任务书,开题报告,论文计算书31000字,CAD建筑图14张,CAD结构图13张)
摘 要
本毕业设计题目为实际工程应用课题,位于南京市,该工程为钢筋混凝土框架—剪力墙结构体系。房屋总高41.1米,共10层。该楼标准层层高为3.6m,一层层高为5.1m。本楼采用框架—剪力墙结构。 为了提高整体抗震性能,本工程所有的梁板柱均为现浇。
本工程抗震设防烈度为7度,设计基本地震加速度值为0.10g,设计地震分组为第一组。工程场地无液化土层,属于Ⅱ类场地土。
关键词: 抗震 剪力墙 高层建筑 截面设计
The General Situation of the Engineering
Abstract
The graduation project is practical application issues,this engineering located in Nanjing,The project is a reinforced concrete frame - shear wall structure. Housing 41.1 m total height of 11layers. The building layers of high standards of 3.6m, level by level to 5.1m. The floor using frame - shear wall structure. In order to improve the overall seismic performance, all the works are cast slab column. [资料来源:http://doc163.com]
The engineering seismic intensity of 7 degrees, the basic design earthquake acceleration is 0.10g, design earthquake grouped into the first group. No soil liquefaction project site, which belongs to the class Ⅱ site soil.
Keywords: seismic shear wall high-rise building section design
1.1 工程地点及工程概况
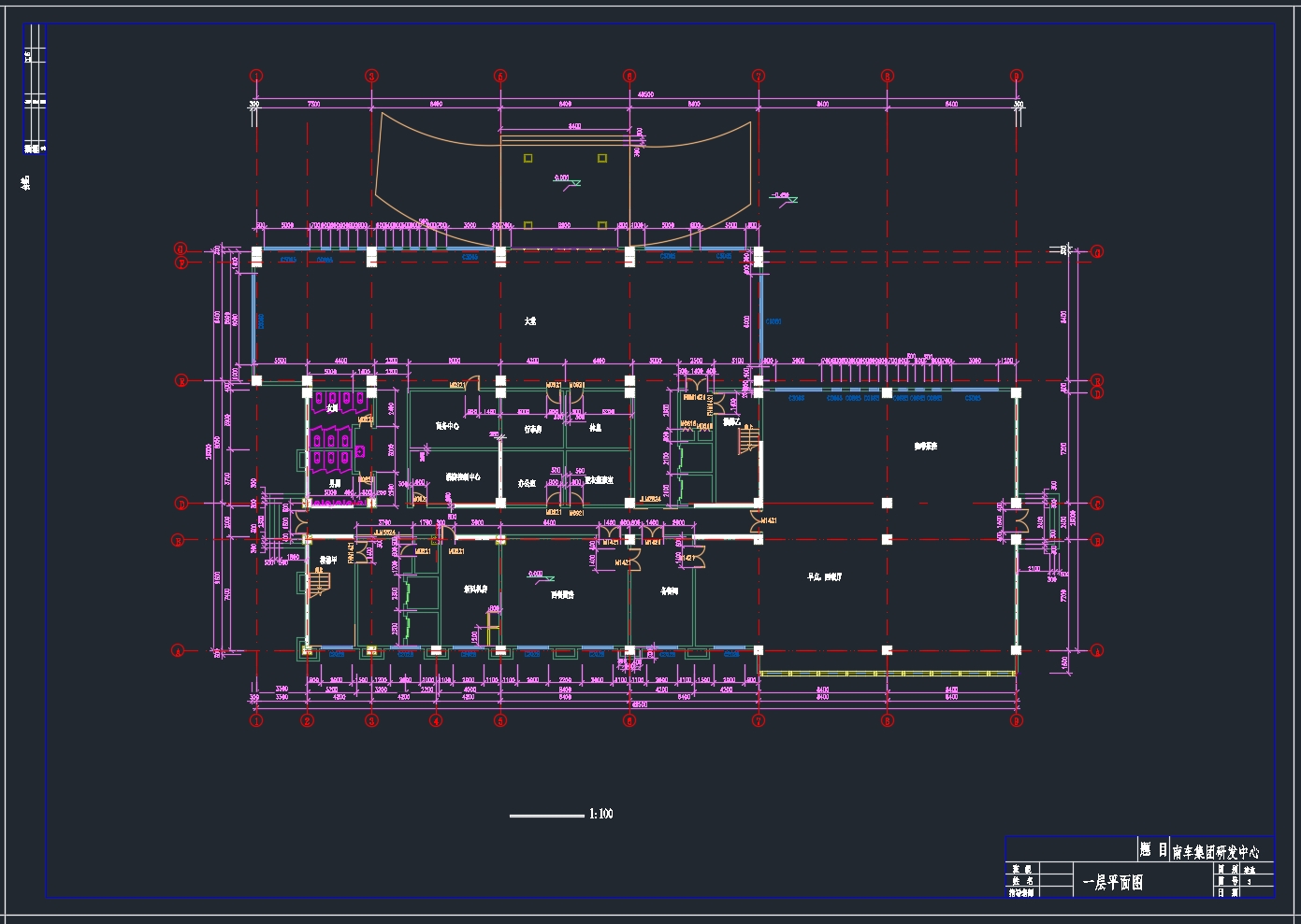
本毕业设计题目为实际工程应用课题,位于南京市,该工程为钢筋混凝土框架—剪力墙结构体系。该办公楼为10层,裙房一层,标准层层高3.6米,裙房层高5.1米,地下车库一层,层高3.6米。建筑总高度41.1米,标准层面积为1007㎡,地下一层面积为1930㎡,地上建筑总面积(不含地下)为12000㎡。抗震设防烈度为7度,设计基本地震加速度值为0.10g,设计地震分组为第一组。工程场地无液化土层,属于Ⅱ类场地土。工程的平面图见附图。
1.2 气象资料
1. 基本风压:0.35kN/m2
2. 基本雪压:0.40kN/m2
1.3 工程地质资料
1、本工程场地较平坦,根据地质钻探,该场地土质较均匀。
3、地下水位较高,在天然地面以下1.5~2.0米处,无侵蚀性。
4、场地无液化土层,属于Ⅱ类场地土。 [来源:http://www.doc163.com]
1.4 结构和基础的安全等级
1. 建筑结构的安全等级为二级。
2. 拟建场地位于7度区,按“建筑抗震设防分类标准”,本工程为丙类建筑,按7度设防标准采用抗震构造。
3. 地基基础设计等级:丙级。
[资料来源:https://www.doc163.com]







[资料来源:Doc163.com]


目录
摘 要 I
第一章 设计资料 2
1.1 工程地点及工程概况 1
1.2 气象资料 1
1.3 工程地质资料 1
1.4 结构和基础的安全等级 1
1.5 荷载取值 1
第二章 结构布置及初选截面尺寸 1
2.1.框架柱截面尺寸初选 2
2.2 框架梁截面尺寸的初选 4
2.3填充墙截面初选 6 [版权所有:http://DOC163.com]
2.4剪力墙截面初选 7
2.5板截面尺寸初选 7
第三章 各层重力荷载计算 7
3.1第一节点G的确定 7
3.2第二G的确定 9
3.3第三到六节点G的确定 12
3.4第七节点G的确定 13
3.5 第八到九节点G的确定 15
3.5 第十节点G的确定 16
第四章 梁、柱、剪力墙刚度计算 18
4.1柱线刚度计算 19
4.2梁线刚度计算 19
4.3柱侧移刚度计算 19
4.4 剪力墙等效刚度 22
4.5连梁约束刚度 24
第五章 水平地震作用力计算 26
5.1结构基本自振周期 26
5.2总水平地震作用 27
5.3 各楼层质点的水平地震作用 27
第六章 框架-剪力墙协同工作计算 28
6.1框架-剪力墙协同工作计算简图 28 [资料来源:www.doc163.com]
6.2结构 值及荷载类型计算 29
6.3内力计算 30
第七章 水平地震作用结构的内力计算 32
7.1框架柱、梁内力计算(D值法) 33
7.2 框架柱轴力与梁端剪力计算 38
7.3连梁内力计算 41
7.4剪力墙内力计算 43
第八章 竖向荷载作用下框架内力分析(分层法) 45
8.1 框架荷载计算 46
(1)B-C跨框架梁上线荷载(双向板) 49
(2)C-D跨框架梁上线荷载 50
(3) D-E跨框架梁上线荷载(与B-C跨对称) 50
(4)梁传至柱上的集中荷载 51
8.2框架内力计算 57
(1)柱的线刚度 58
(2)梁的线刚度,见表8.2 58
(3)梁的固端弯矩见表8.3 58
(4)梁的固端弯矩见表8.4 58
(5)恒载作用下的弯矩一次分配 58
(6)恒载作用下的弯矩二次分配 61
(7)恒载作用下的弯矩一次分配 66
(5)恒载作用下的弯矩一次分配 69
(6)柱端剪力计算 78
(7)柱轴力计算过程及结果 80
第九章 框架梁柱内力组合 82
9.1 梁内力组合 83
9.2 柱内力组合 83
第十章 剪力墙、连梁内力组合 96
10.1 剪力墙在竖向荷载下内力计算 97
10.2剪力墙的内力组合 99
10.3连梁的内力组合 100
第十一章 截面设计与配筋计算 101
11.1框架梁(正、斜)截面设计(抗震等级二级) 102
11.2框架柱(正、斜)截面设计(抗震等级二级) 119
11.3剪力墙截面设计 131
11.4连梁截面设计 134
第十二章 楼梯设计 136
12.1梯段板设计 136
12.2平台板设计 137
12.3 平台梁设计 138 [版权所有:http://DOC163.com]
第十三章 双向板设计 139
13.1荷载设计值 139
13.2计算跨度 139
13.3 弯矩计算 140
13.4截面设计 141
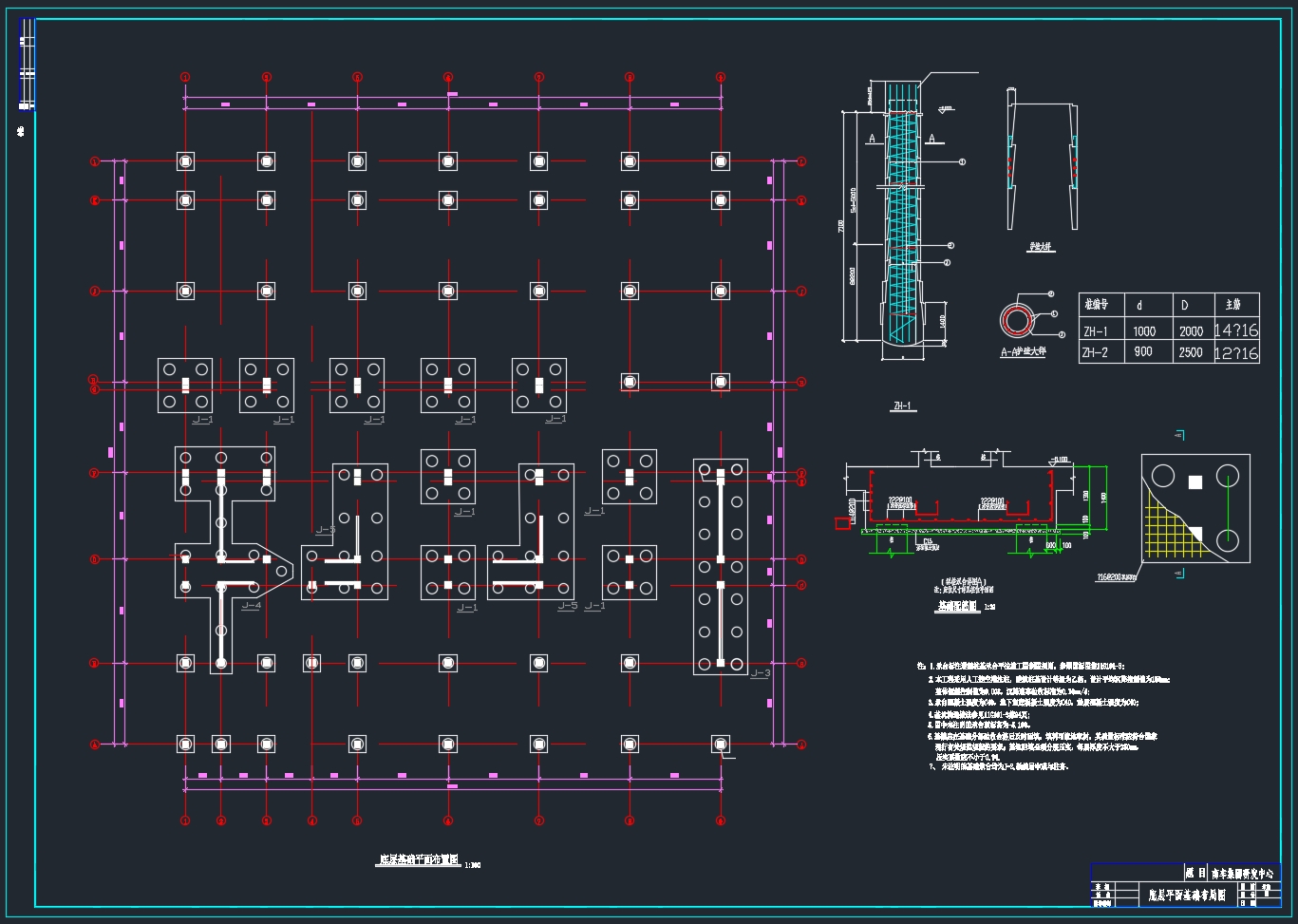
第十四章 桩基础设计 142
14.1 框架柱桩基设计 142
(1)单桩竖向承载力标准值 142
(2)单桩竖向承载力特征值 143
(3)桩承台设计 148
(4)单桩桩身设计 148
14.2 地下室底板 148
第十五章 南车集团pkpm建模计算书 149
参考文献: 223
致谢 224
上一篇:五层4358平米镇江市某高校图书馆设计(含CAD建筑图结构图)
下一篇:十层南京某集团办公楼框架—剪力墙结构设计(含CAD结构图)
