常州市某高层住宅楼电气系统设计(含CAD图)

常州市某高层住宅楼电气系统设计(含CAD图)(任务书,开题报告,论文说明书10000字,CAD图28张)
摘要
本毕业设计为常州市某园城南侧6号楼电气系统设计。工程包括地上34层住宅楼,地下一层停车场,楼顶机房层,变配电所等。在此次设计中,以课本知识为主体,借鉴以往课程设计内容,不断思考改善,完善设计,解决设计中所遇到的各种困难。此毕业设计论文主要阐述了设计中参考依据以及各设备选型的计算,并配合表格数据,将设计中所涉及的各设备的选用型号,以及回路分配情况做出阐述。并在论文中对设备及回路的设计进行验算校准,确保设计的准确性。
设计主要包括照明系统,低压配电系统,建筑物防雷接地系统,各系统内还包括照度计算,负荷计算,电压损耗,防雷接地计算等。论文中列举出各个设备的选型计算,以及各设备的选型表,并对设计进行粗略介绍。并在每章节最后对设备安装说明也进行了阐述。
关键字:照明系统、动力系统、配电所大样图、配电所系统图、设备选型计算
The design of 6 building electrical system in Changzhou city on the south side of the garden city
Abstract
The graduation design for Changzhou City, a city park on the south side of No. 6 electrical system design. Engineering including 34 layer residential buildings, underground a layer of parking, roof room floor distribution,power distribution .In the design to the textbook knowledge as the main body, reference to the previous curriculum design, and constantly to think of ways to improve and perfect design, to solve the design encountered all kinds of difficulties. This graduate design thesis mainly expounds the design reference and the equipment selection calculation, and with tabular data, the design involved the equipment selection of models, and loop distribution in this paper. And the thesis of the equipment and circuit design for checking calibration, ensure the design accuracy . [资料来源:http://doc163.com]
Design mainly includes the design of lighting system and low voltage power distribution system, lightning protection of buildings connected system, including the illumination calculation, load calculation, voltage loss and lightning protection and grounding calculation. The list all equipment selection calculation and the equipment selection table and the design are briefly introduced. At the end of each chapter, the installation instructions are also described.
Key words: lighting system;power system; power distribution drawing; distribution diagram of the system; equipment selection calculation
工程概述
本工程为常州市某园城南侧6号楼。建筑物高度99.7米,建筑面积14413.74m2。其中地下建筑面积450.55m2,地上建筑面积13963.19m2。地上34层为住宅房;顶楼为机房层主要包含电梯机房;地下室为自行车车库,强电间、弱电间、电信间、配电间、风机房、集水井位于地下一层内。
1.2设计概述
本次设计对象是常州某园城南侧6号楼。设计理念: [资料来源:https://www.doc163.com]
1.建筑供配电设计和施工过程必须严格执行国家相关政策和法令,设计文件的编写必须符合国家的现行标准、设计规范以及制图标准。
2.按照投资的数额来确定合适的设计标准:比如灯具设计规范,在规范中只给了最低的标准来满足照度要求,但是最终设备档次的选择取决于投资。
3.设计应考虑实际环境,并尽量选用当前先进的电气技术,使设计趋于高效化、现代化;符合当前的节能减排、绿色建筑、环境保护等相关环境保护问题。
[资料来源:www.doc163.com]




[资料来源:http://Doc163.com]


目录
摘要 I
Abstract II
第一章 系统概述 5
1.1工程概述 5
1.2设计概述 5
1.2.1照明系统 5
1.2.2动力系统 6
1.2.3配电系统 6
第二章 照明系统 8
2.1照明计算 8
2.1.1照度计算 8
2.1.2本工程照明配电系统设计 12
2.2照明系统设计原则 12
[资料来源:www.doc163.com]
第三章 供配电系统 14
3.1需要系数法确定计算负荷 14
3.2照明负荷计算 15
3.3按电压损失校验 26
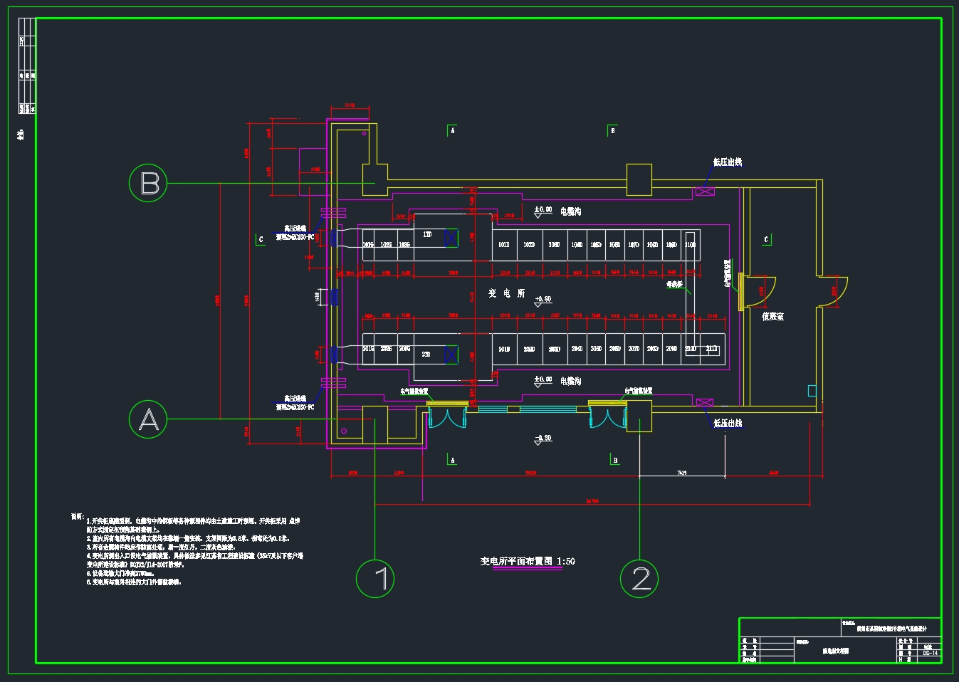
第四章 变配电所 27
4.1配电箱的设计原则 27
4.2变电所位置选择的要求 27
4.3选型计算 28
4.3.1负荷计算 28
4.3.2无功功率补偿计算: 30
5.3.3变压器的选择: 31
第五章 接地系统 32
第六章 防雷系统 34
6.1 防雷系统设计 34
6.2 本工程防雷系统设计结果 34
结语 36
参考文献 37
致谢 39 [来源:http://Doc163.com]
