常州某高层住宅小区电气设计(含CAD图)

常州某高层住宅小区电气设计(含CAD图)(任务书,开题报告,外文翻译,论文说明书13000字,CAD图20张)
摘要
本工程是高层住宅小区的电气设计(常州市某园城1号楼)。其中包括一到二十六层住宅楼,地下一层自行车库,楼顶机房等。在本次电气设计中,将所学的专业电气知识应用于工程的实际设计过程,并通过自己的思考使得设计规范化,简明化,合理化。积极思考,主动将用户使用过程中可能遇到的问题纳入考虑,使设计更具人性化。本设计论文主要阐述了常州市某园城1号楼的各电气系统设计的设计依据、设计原则、设计方法及设计结论。
常州市某园城1号楼的电气设计主要包括了强电设计。设计采用AUTOCAD绘制。
强电部分主要包括:照明系统,供配电系统,建筑物防雷接地系统,变电所设计,主要计算包括负荷计算、照度计算、电压损耗、防雷接地计算等。
关键词:照明系统设计 供配电 防雷基础接地 变电所
Electricaldesign of 1 building Changzhou Jiangsu
Abstract
This project is a high-level residential district electrical design(1 building Changzhou Jiangsu )Including one to twenty-six floods. The basement bicycle library and the top flood elevator machine room.In the design, I can combine the project with the knowledge I have learnt, and solve the problems I will meet in the progress of designing by thinking and trying.In order to make the design normalized,simplified and reasonable.I bring all of the problems into consideration which people may meet during using the house to make the design more humanized. And this paper mostly elaborates the design basis、principle、methods and the conclusion of the 1 building Changzhou Jiangsu electrical design.
[来源:http://Doc163.com]
The 1building ChangzhouJiangsuelectrical designincludesforcefulelectricpowerandlightcurrentdesign.DesignusingAUTOCAD.
Thepartoftheforcefulelectricpowermainlyincluding:thedistributionsystemofthelowvoltage、lightingsystem、Emergencylighting systemandroundingforlightening systematicalcompose,amongthoseincludeloadcalculation,illuminationcalculation,Lightningprotectionandgroundingcalculation.
KeyWords:Lighting design Supplyanddistribution Anti-thunder Grounding for lightening Electric-power substation
工程概况
本工程为高层住宅小区的电气设计(常州市某园城1号楼)。此建筑为二十六层,耐火等级:一级。建筑面积18086.8m2,分为两个单元,1单元26层,2单元21层。一层到二十六层的每层高为2.9m,屋顶为电梯机房层。该建筑一层至二十六层主要是住宅用房;楼顶为机房层,主要设有电梯机房;地下一层由自行车车库,强电间,弱电间,风机房组成。
[资料来源:Doc163.com]




[资料来源:www.doc163.com]


目录
摘要 I
Abstract II
第一章概述 1
1.1工程概况 1
1.2设计原则 1
1.3工程系统简介 1
1.3.1低压配电系统 1
1.3.2 照明系统 2
1.3.3 动力系统 3
1.3.4 防雷系统与等电位连接 3
第二章低压配电系统设计 4
2.1 负荷分级及供电要求 4
2.1.1 负荷分级 4
[来源:http://Doc163.com]
2.2负荷确定 4
2.3 本工程配电方案 4
第三章照明系统设计 5
3.1照明光源及灯具选择 5
3.1.1照明光源选择原则 5
3.1.2本工程灯具光源选择 5
3.1.3照明灯具选择原则 5
3.2照明设计要求 5
3.2.1本工程公共照明设计 5
3.2.2 应急照明设计 6
3.2.3 住宅内照明设计 6
3.3照度计算及灯具布置 6
3.3.1照明规范 6
3.3.2 负一层配电间照度计算及灯具布置 7
3.3.3其他房间照度计算及灯具布置 11
3.4住宅照明负荷计算及设备选型 11
3.4.1 需要系数法确定计算负荷单向设备有功计算负荷 11
3.4.2具体计算与选型 12
3.5公共照明负荷计算 15
第四章供配电设计 18
4.1供配电方式 18 [资料来源:http://www.doc163.com]
4.1.1供电电源的选择 20
4.1.2无功功率补偿计算 20
4.1.3变压器的选择 21
4.1.4低压配电方案 21
4.1.5接地的方案 21
4.2本工程动力负荷及供电要求 22
4.2.1动力设备的负荷计算 22
4.3电缆的选择 26
4.4配电线路电气火灾防护 28
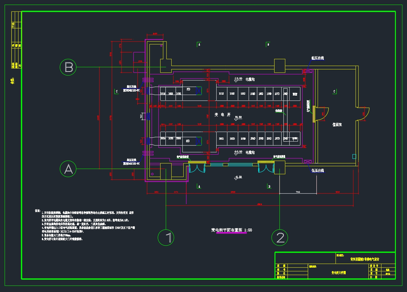
第五章变配电所设计 30
5.1变配电室设计的要求: 30
5.2变电所位置选择的要求 30
5.3配电所高压柜平面布置 30
5.4低压开关柜平面布置 31
5.5变配电所接地布置 31
第六章防雷系统与等电位连接 32
6.1 防雷系统设计 32
6.1.1本建筑防雷概况 32
6.1.2本建筑防雷类别 32
6.2本工程防雷系统设计结果 32
6.2.1防直击雷 32
[资料来源:Doc163.com]
6.2.2 浪涌保护器的选择 33
6.3等电位连接与接地 34
结束语 36
参考文献 37
致谢 38 [来源:http://www.doc163.com]
