天津市某六层电力公司空调工程设计(含CAD图)

天津市某六层电力公司空调工程设计(含CAD图)(任务书,开题报告,外文翻译,计算说明书15600字,CAD图纸10张)
摘要
本工程为供电公司,建筑面积共计7000mm2,地上6层,地下1层,建筑高度31.2m。 地下室为设备用房,一层为电子会议室、休息室、调度电源室等,二~六层为办公、资料 室等。要求对办公、会议、休息、走廊等区域进行空调设计;对卫生间、地下室设备用房 等进行通风设计;进行全楼空调用冷热源设计。通风空调设计面积约7000m2。
本设计包括空调系统、通风系统、冷热源系统等设计。根据本课题的实际情况,初定 空调方案及形式,系统划分,冷热源选择布置,空调方式,水系统等。
系统的划分为:一层除电子会议室外加2-6层其他房间由于各房间面积不是很大,且 房间功能都相似,半集中式空调系统恰好能很好的满足这些房间的要求,因此全都选用半 集中式空调系统中的风机盘管+新风系统,对于一层中的电子会议室,由于其面积大,人 员多,因此采用全空气系统。对于卫生间夏季对温度调节的要求不高,在卫生间域中只安 装通风设备,而不设置制冷系统。
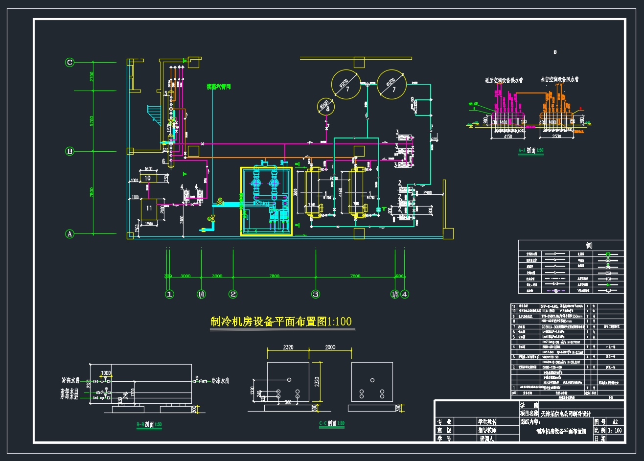
冷热源选择布置:冷热源选择水冷式半封闭双螺杆式制冷机组和城市热水管网 水系统形式:拟采用双管制闭式异程式系统。双管制系统简单、初投资少。闭式水系 [版权所有:http://DOC163.com]
统中冷冻水或热水在系统内密闭循环,不与大气接触,管路系统不易产生污垢和腐蚀,并 且系统简单、水泵耗电量较少。异程式系统的特点是节省管材,管路简单。
通风方式:采用自然通风与机械通风相结合的方式。在符合自然通风条件的地方,采 用自然通风;在条件不符的地方,采用机械通风或自然通风与机械通风相结合的方式。
关键词:空气调节 风机盘管加新风系统 冷热源
Abstract
Thisprojectisforpower supply company,atotalconstructionareaof7000mm2,onthe ground6, underground1layer,buildingheight31.2m.Thebasementfortheequipment room, a layerfortheelectronicmeetingroom,lounge,dispatchingpowersupplyroom,two~sixlayer foroffice,roometc.. Requirementsfor theair conditioningdesignofregionaloffice,conference, rest,corridor;ventilationdesignoftoilet,underground equipmentroom;withcoldand heat sourcedesignofbuildingairconditioning.Ventilationandairconditioningdesignareaisabout
7000 m2.
Thedesignincludesthedesign of air conditioningsystem,ventilationsystem,coldandheat sourcesystem.According totheactualsituationoftheproject,theinitialairconditioningscheme andthe form,distributionsystem,thechoiceofcoldand heatsource arrangement, air conditioning,watersystem. [资料来源:http://doc163.com]
Thesystemisdividedinto:oneexcepttheelectronicconferenceoutdoor2-6layerdueto theotherroomroomareaisnotlarge,theroomfeaturesaresimilar,semi-centralair conditioning systemcanwellmeettherequirementsoftheserooms, soallofthefan-coilunitplusfreshair systemsemi-centralair conditioningsystem,theelectronicmeetinglayer intheroom,becauseof itslargearea, personnel,so theuse oftheentireair system. Forthebathroom summerof temperature control requirements isnothigh,onlyventilationequipmentinstalledinthe bathroominthedomain,butnotsetrefrigerationsystem.
Thechoiceofcold andheatsourcearrangement: thechoiceofcoldandheatsourcefor water-cooledsemi-enclosedtwin-screwrefrigerationunitandthecitywaterpipenetwork
Watersystem:theclosedsystemofdifferentprogramsadopttwo-pipe.Two-pipesystemis simple,lowinitialinvestment.Closedchilledwaterorhotwatersystemofclosedloopinthe system, notincontact withtheatmosphere, thepipelinesystem lesspronetofoulingand corrosion,andthesystemissimple,thepumppowerconsumption.Characteristicsofdifferent programmingsystemissavingmaterial,simplepipeline. [资料来源:https://www.doc163.com]
Ventilation:useofnaturalventilationandmechanicalventilationcombinedway.Inline with theconditionsofnaturalventilation,naturalventilation;intheinconsistentconditions,the useofmechanicalventilationandnaturalventilationandmechanicalventilationcombinedway.
Keywords:airconditioning,fancoilplusfreshairsystem,coldandheatsource
建筑概况
本工程位于天津市,建筑面积约7000m2,共6层,层高24m,需要进行采暖、空调、 制冷、通风的设计。
[资料来源:Doc163.com]






计算说明书
目 录
摘 要……………………………………………………………………………………I
ABSTRACT ……………………………………………………………………………II [版权所有:http://DOC163.com]
第1章 工程概况.................................................................................................................7
1.1 建筑概况................................................................................................................7
第2章 采暖空调负荷计算.................................................................................................8
2.1 室外设计计算参数................................................................................................8
2.2 室内设计计算参数................................................................................................8
2.2.1 室内设计温度与相对湿度.........................................................................8
2.2.2 室内人员密度.............................................................................................8
2.2.3 照明密度值的选定.....................................................................................8
[资料来源:www.doc163.com]
2.2.4 电气设备使用功率.....................................................................................9
2.2.5 房间设计新风量的确定.............................................................................9
2.2.6 空调使用时间的设定.................................................................................9
2.3 围护结构热工参数................................................................................................9
2.4.2 冷负荷汇总...............................................................................................16
2.5冬季采暖热负荷设计计算....................................................................................19
2.5.1 热负荷计算方法.......................................................................................19
第3章 空调系统设计及冷热源选择............................................................................... 22
3.1 空调系统方式确定..............................................................................................22
3.1.1 空气调节系统分类...................................................................................22
3.1.2 系统方式的确定.......................................................................................23
3.2 空调系统划分...................................................................................................... 24
3.3 系统冷热源方案的确定......................................................................................25
3.3.1 常用冷热源的形式及特点.......................................................................25
3.3.2 冷热源选择...............................................................................................26
第4章 风系统设计...........................................................................................................26 [资料来源:https://www.doc163.com]
4.1 空调房间风量计算..............................................................................................26
4.1.1 一次回风系统........................................................................................... 26
4.1.2 风机盘管+新风系统风量计算.................................................................28
4.2 设备选型..............................................................................................................30
4.2.1 空气处理机组选型...................................................................................30
4.2.2 风机盘管选型........................................................................................... 30
4.2.3 冷冻机组选型........................................................................................... 30
第5章 风系统与水系统的设计计算............................................................................... 31 [资料来源:http://doc163.com]
5.1风系统设计............................................................................................................31
5.1.1气流组织的选择与计算.............................................................................31
5.1.2风管水力计算.............................................................................................32
5.1.3 回风口设计计算.......................................................................................35
5.2 水系统设计计算..................................................................................................36
5.2.1 水系统形式...............................................................................................36
5.3 冷凝水管设计计算..............................................................................................41
第6章 冷冻机房主要设备设计计算............................................................................... 41
6.1 水泵选择..............................................................................................................41
6.1.1冷冻水循环系统水力计算................................................................................41
6.1.2冷却水循环系统水力计算................................................................................43
6.1.3补给水泵的水力计算........................................................................................ 45
6.1.4冷冻水和冷却水水泵的选择............................................................................ 46
冷冻水泵的选择...................................................................................................46
(Ⅲ)补水泵的选择........................................................................................... 48
6.2.软化水器的选择..................................................................................................49
6.3 冷却塔的选择及电子水处理仪的选择..............................................................49 [版权所有:http://DOC163.com]
6.3.1 冷却塔的选择........................................................................................... 49
6.3.2 电子水处理装置的选择...........................................................................51
第7章 管道保温...............................................................................................................52
7.1 管道保温的目的..................................................................................................52
7.2 保温的设置与保温材料的选则原则.................................................................. 52
第8章噪声与振动控制.....................................................................................................53
8.1 噪声控制..............................................................................................................53
8.2 振动控制..............................................................................................................53
结 语................................................................................................................................... 54
参考文献...............................................................................................................................55 [资料来源:http://www.doc163.com]
