五层宜宾市某职业中学教学楼设计(含建筑结构图,施工组织)

五层宜宾市某职业中学教学楼设计(含建筑结构图,施工组织)(任务书,开题报告,外文翻译,论文计算书15000字,施工组织设计25000字,CAD建筑图12张,CAD结构图11张,横道图)
摘要
毕业设计是我们专业课学习的最后一个综合实践性教学环节。
本文主要介绍了宜宾市职业中学教学楼设计过程,在设计中认真贯彻了“安全、适用、经济、美观”的设计原则,采用钢筋混凝土框架结构,经过合理分析和比较之后进行设计。
本设计主要包括建筑设计和结构设计两部分。建筑设计包括:平面设计、立面设计、剖面设计。结构设计包括:结构选型,梁、柱等构件尺寸的确定,重力荷载计算,横向水平风荷载作用下框架结构的内力和侧移计算,水平地震作用下横向框架内力分析,竖向荷载作用下横向框架的内力分析,内力组合以及截面设计、楼板设计、楼梯设计和基础设计。其中,基础设计又包括基础选型、基础平面布置、地基承载力计算等。
在设计的过程中我严格按照专业相关规范及有关规定进行设计,设计过程中采用的计算方法均是参照有关规范或图集和其他参考书籍。
关键词:混凝土结构;框架结构;结构计算;内力分析;截面设计
Abstract
Graduation design is the last comprehensive practical teaching link in our professional courses. [资料来源:http://www.doc163.com]
This paper mainly introduces the design process of the teaching building of Yibin Vocational Middle School. In the design, the design principle of "safety, applicability, economy and beauty" is conscientiously implemented. The reinforced concrete frame structure is adopted and designed after reasonable analysis and comparison.
This design mainly includes two parts: architectural design and structural design.Architectural design includes graphic design, elevation design and section design.Structural design includes: structural selection, determination of size of beam and column, calculation of gravity load, calculation of internal force and lateral displacement of frame structure under lateral horizontal wind load, analysis of transverse frame force under horizontal earthquake, analysis of internal force of transverse frame under vertical load, combination of internal force and section design, floor design, staircase design and foundation design.Foundation design includes foundation type selection, foundation plane layout and foundation bearing capacity calculation. [资料来源:http://www.doc163.com]
In the process of design, I design in strict accordance with the relevant professional norms and regulations. The calculation methods used in the design process are referring to the relevant norms or atlases and other reference books.
Key words: concrete structure; frame structure; structural calculation; internal force analysis; section design
工程概况
3.4 设计资料
3.4.1 气象条件
基本风压
3.4.2 抗震设防
按7级近震, 地震分组为二组;
II类场地设计
3.4.3 地基土承载力
地基土承载力为
3.4.4 其它条件
室内外高差450mm。
[资料来源:http://doc163.com]









[资料来源:Doc163.com]
目录
摘要 I
ABSTRACT II
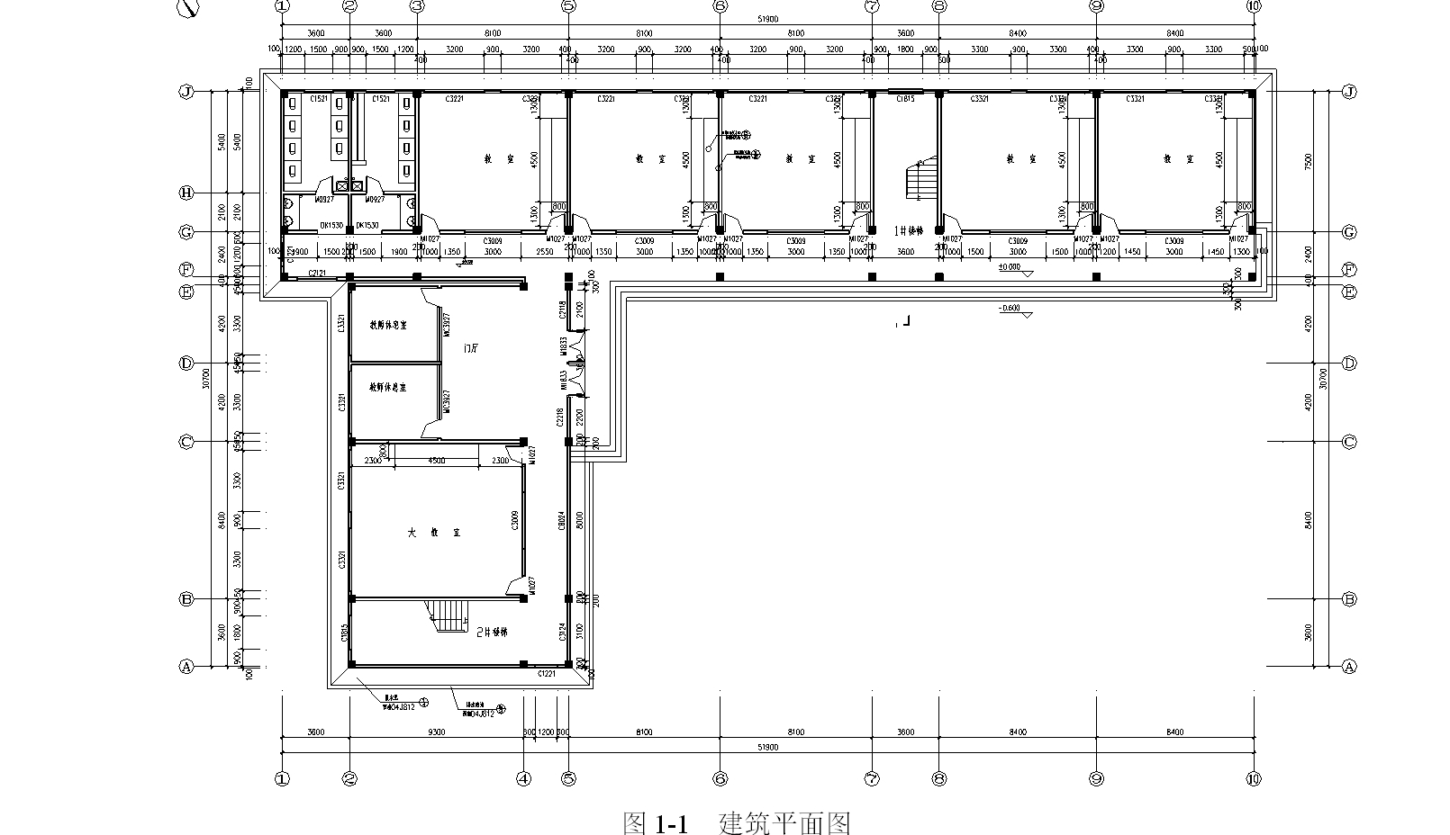
第一章 建筑平面设计 1
1.1 教学区的布置 1
1.1.1 教室功能说明 2
1.1.2 房间的门窗 2
1.2 辅助使用房间 2
1.2.1 卫生间 2
1.2.2 教师办公室、休息室 2
1.3 交通联系部分 2
1.3.1 楼梯 2
1.3.2 走道 3
1.3.3 出入口及门厅 3
第二章 建筑空间和立面设计 4
2.1 层数层高 4
2.2 建筑立面设计 4
第三章 工程概况 5
3.1 工程简介 5
3.2 课题条件要求 5
3.3 设计的基本内容 5
3.4 设计资料 6
3.4.1 气象条件 6
3.4.2 抗震设防 6
3.4.3 地基土承载力 6
[版权所有:http://DOC163.com]
3.4.4 其它条件 6
3.5确定计算简图 6
第四章 框架结构的设计与计算 7
4.1 梁柱截面,梁跨度及柱高确定 7
4.1.1 梁截面尺寸的初步确定 7
4.1.2 柱截面尺寸的初步确定 7
4.1.3 板的厚度初估 8
4.1.4 梁的计算跨度 8
4.1.5 柱的高度 8
4.2重力荷载的计算 8
4.2.1屋面及楼面永久荷载(恒荷载)标准值 8
4.2.2屋面及楼面可变荷载(活荷载)标准值 10
4.2.3梁柱的自重 10
4.2.4墙体的自重 11
4.2.5 门窗的自重 12
4.2.6 各层的荷载的组合 12
第五章 内力计算 14
5.1 横梁的线刚度 14
5.2横向框架柱的线刚度及侧移刚度值 14
5.2.1横向框架柱的线刚度 14
5.2.2横向框架柱的侧移刚度值 14 [资料来源:https://www.doc163.com]
5.3横向框架自震周期 16
5.4横向框架水平地震作用及楼层地震剪力 17
5.5横向框架水平地震作用位移验算 18
5.6竖向荷载作用下横向框架结构的内力计算 19
5.6.1 计算单元 19
5.6.2 荷载计算 20
5.6.3 内力计算 23
5.6.4. 计算恒载和活载作用下梁端剪力和柱轴力 28
5.7 水平地震作用下框架内力计算 31
5.7.1. 0.5(雪+活)重力荷载作用下横向框架的内力计算 31
5.7.2 地震作用下横向框架的内力计算 35
5.8 横向风荷载作用下框架结构内力和侧移计算 38
5.8.1 风荷载标准值的计算 38
5.8.2风荷载作用下的水平位移验算 39
5.8.3风荷载作用下的框架内力计算 39
第六章 框架内力组合 43
6.1 框架梁内力组合 43
6.2. 最不利截面处的弯矩设计值 50
[资料来源:Doc163.com]
6.3 框架柱内力组合 52
第七章 截面设计 62
7.1承载力抗力调整系数 62
7.1.1 框架梁 62
7.1.2框架柱 70
7.2抗震条件下框架柱的截面设计 72
7.3计算非抗震条件下框架柱的截面设计 75
第八章 现浇板设计 79
8.1 设计参数 79
8.2跨中最大弯矩 79
8.3 求支座中点最大弯矩 79
8.4 G区格 80
8.5 H区格 81
第九章 楼梯设计 83
9.1楼梯板设计 83
9.2平台板设计 84
9.3梯段梁设计 85
第十章 基础设计 87
10.1基础梁截面尺寸的选取 87
10.2荷载选用 87
10.3基础截面设计 87
10.4地基承载力及基础冲切验算 88
[资料来源:www.doc163.com]
10.5基础底板配筋计算 90
结语 94
参考文献 94
致谢 96
框架结构施工组织设计计算书
目录
第一章 施工技术部分 1
1.1工程概况 1
1.2.1建筑概况 1
1.2.2结构概况 1
1.2.3装修概况 1
1.2.4其它概况 1
1.3施工部署 2
1.3.1施工部署 2
1.3.2施工班组部署 3
第二章 施工准备 4
2.1技术准备 4
2.2劳动组织准备及物资准备 4
2.3施工现场准备 6
2.3.1施工现场基本准备 6
第三章 主要项目施工方法和技术措施 8
3.1测量放线 8
3.2土方工程 8
3.3钢筋工程 10
3.4模板工程 13
3.4.1现浇楼板模板: 13
3.4.2柱模板 13
3.4.3梁、楼板模板 13
3.4.4模板工程质量控制要点及一般要求 14
3.4.5拆模时间 15
3.5混凝土工程 16
3.6脚手架工程 18
3.7砌体工程 20
3.8屋面工程 22
3.8.2 屋面保温层施工 23
3.9防水工程 24
3.9.1工艺流程 24
3.9.2施工注意事项和质量要求 25
3.10装饰工程 26
3.10.1楼地面工程 26
3.10.2抹灰工程 28
3.10.3内外墙装饰 30
3.10.4设备安装工程 30
3.10.5门窗工程 31
第四章 施工进度计划 35
4.1各分部工程的施工顺序 35
4.2划分施工过程、施工段划分与施工流向 35
第五章 施工技术措施 39
5.1 雨季施工 39
5.2 保护等特殊情况下的施工措施 40
5.2.1 施工前的保护措施 40
5.2.2 施工过程中的保护措施 40
附录 42
施工平面布置图(另附) 42
施工横道图 (另附) 42 [资料来源:http://Doc163.com]
上一篇:北京市7342平米某办公楼装配式结构设计(含建筑图)
下一篇:三层1453平米扬州某教师宿舍楼设计(含建筑图结构图)
