五层3200平米扬州联创公司办公楼设计(含CAD建筑图结构图)

五层3200平米扬州联创公司办公楼设计(含CAD建筑图结构图)(任务书,开题报告,外文翻译,论文计算书12000字,CAD图18张)
中文摘要
毕业设计是专业课教学的综合实践性教学环节,是对大学四年来所学内容的复习和巩固。本设计主要是针对5轴横向框架设计。在确定框架布局之后,进行了重力荷载代表值的计算,利用底部剪力法求出自震周期下的结构弯矩、剪力、以及轴力。然后计算竖向荷载,包括恒载、活载和雪载,在这些荷载作用下结构的内力,找出最不利的组合,然后选出最安全的计算结果配筋并绘图。此外还进行了室内楼梯、楼盖以及基础的设计,并将手算结果与电算结果进行校核、分析。
关键词:建筑设计 框架结构 钢筋混凝土 PKPM
Title The Design of Teaching Building In MengZi Primary Schoolt
Abstract
Graduation design is a comprehensive practical teaching of specialized course teaching, the contents of the review for four years. This design is mainly the design of transverse frame structure scheme of axis 5 framework. In determining the distribution framework, the weight of each floor is calculated, using the vertex from the displacement method for moment, shear, and the earthquake cycle under axial force. Then calculate vertical load, including dead load, live load and snow load, internal forces in the structure of these loads, find the most unfavorable combination, and then select the calculation results the most secure and reinforcement drawings. In addition to the interior design of the stairs, floor and foundation, and will hand count the results of computer check, analysis results. [资料来源:http://doc163.com]
Keywords
Architectural design Frames structure Reinforced concrete PKPM
扬州联创公司办公楼设计
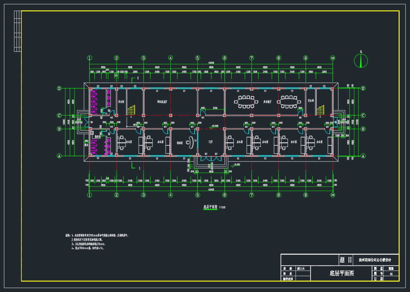
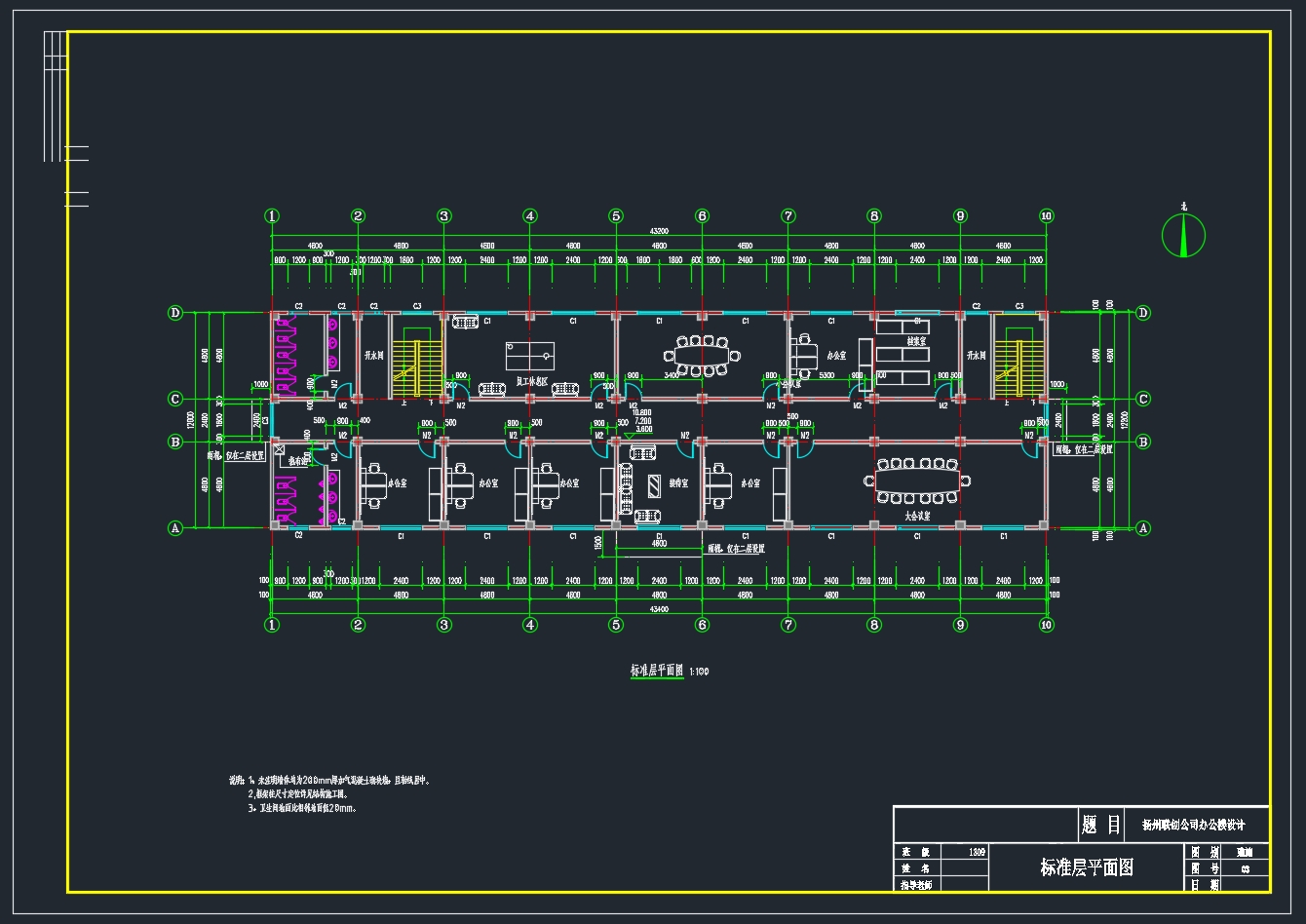
根据要求,地点在江苏扬州,为钢筋混凝土多层框架结构设计。共五层。采用现浇钢筋混凝土多层框架结构,其中:开间4800mm,进深4800mm,内廊宽度为2400mm。在正常情况下,本工程的合理设计使用年限为50年,建筑结构的安全等级为二级。条件具体如下:
1.1 气象资料
基本风压: W0=0.4kN/m2(结构设计时不考虑风荷载作用);
基本雪压:S0=0.35kN/m2(雪荷载永久值系数分区为Ⅱ);
主导风向:东南风。
1.2 工程地质资料
无液化土层,地下水无侵蚀性。
基础形式:独立基础。
3.详细勘查情况如下:
设计标高
室内设计标高±0.000,室内外高差 500mm。
地下水位
地下水位位于地表下 3m 处,对各种砼均无侵蚀性。
[资料来源:http://www.doc163.com]




[资料来源:http://doc163.com] 

目 录
第一章 结构选型与布置 5
1.1结构选型 6
1.2结构布置 6
1.3工程已知条件 7
第二章 确定计算简图 7
2.1确定计算简图 7
2.2梁柱截面的初步确定 7
2.3确定材料强度等级 8
2.4荷载计算 8
第三章 框架内力计算 17
[资料来源:Doc163.com]
3.1恒载作用下的框架内力 17
3.2活载作用下的框架内力 25
3.3风荷载作用下的位移、内力计算 37
3.4地震作用下横向框架的内力计算 43
第四章 框架内力组合 52
第五章 框架梁柱截面设计 58
第六章 现浇楼面板设计 69
6.1跨中最大弯矩 69
6.2求支座中点最大弯矩 70
6.3 A区格 71
6.4 B区格 72
第七章 楼梯结构计算设计 74
6.1梯段板计算 75
6.2休息平台板计算 76
6.3梯段梁计算 77
第八章 基础设计 79
8.1荷载计算 79
8.2基础结构设计 80
第九章 软件分析结果与手算结果比较.………………………………86
[版权所有:http://DOC163.com]
结语 92
致谢 93
参考文献 94 [资料来源:https://www.doc163.com]
上一篇:四层3700平米徐州市某大学学科楼设计(含建筑图结构图)
下一篇:单层1950平米南京某集团钢材库钢架工业厂房设计(含CAD图)
