某型柴油机SCR催化器的设计和参数优化(含Creo三维图)

某型柴油机SCR催化器的设计和参数优化(含Creo三维图)(任务书,开题报告,文献摘要,外文翻译,论文说明书10000字,PDF图3张,Creo三维图)
摘要
柴油车排放的尾气中含有的氮氧化物(NOx)、颗粒物(PM)、一氧化碳(CO)、碳氢(HC)等给大气环境造成了非常严重的污染,同时也对人们的身体健康和生产生活带来了严重的危害和不便。随着这些问题的日趋严重,大家越来越重视这一问题,国家制定了严格的排放法规,更多的科研人员也投身于柴油车尾气处理的研究。柴油机尾气处理的方法有很多,目前最有效的降低柴油机NOx排放的技术之一就是尿素选择性催化还原技术(Urea-SCR)。本文就Urea-SCR技术对其系统进行研究,并且对其中进行催化反应的部分设计。通过Cu-SSZ-13分子筛的台架试验,研究了催化剂NOx转化率的影响因素和储氨特性。
首先对柴油机SCR技术进行了具体的介绍,包括SCR系统的组成及其工作原理。对比国内外SCR技术的发展,可以看出我们国家虽然起步较欧洲、美国等一些国家晚,但是随着不断的学习和研究,我国的SCR技术也在发展中进步。
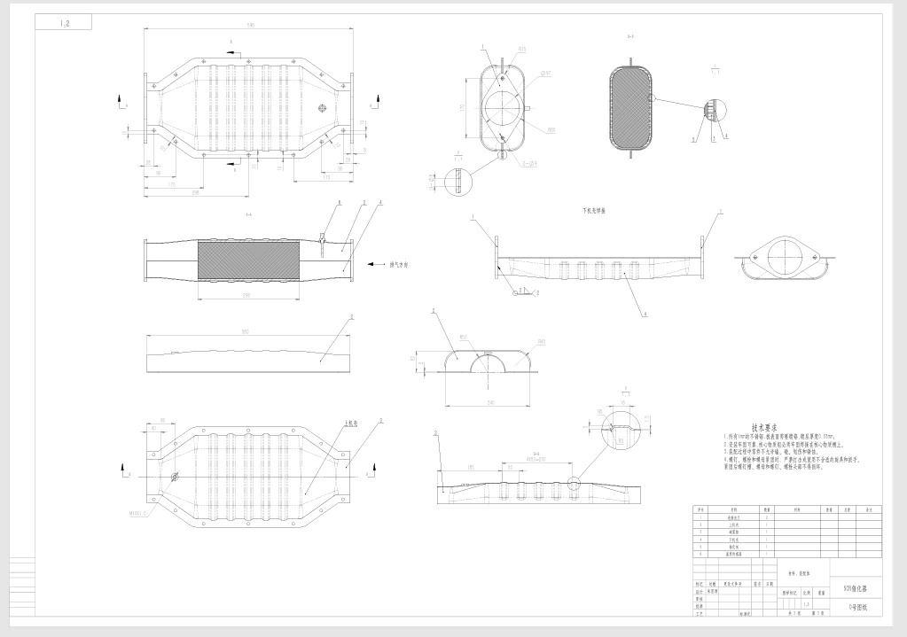
其次是对SCR系统中的催化转化器的设计,催化转化器主要是由催化剂、减震垫、壳体、法兰、温度传感器构成,通过Creo进行三维建模。现在常用的催化剂有钒基催化剂、贵金属催化剂、金属氧化物催化剂和分子筛催化剂,本项目实验所用到的催化剂就是铜基分子筛催化剂(Cu-SSZ-13)。 [资料来源:www.doc163.com]
最后是Cu-SSZ-13分子筛催化剂的性能试验。一是通过测量NO在不同温度下的进、出口浓度,研究温度对于NOx转化率的影响;二是改变氮氨比,分析研究不同的氮氨比对NOx转化率的影响;三是关于催化剂的储氨特性,分别在200℃对新鲜催化剂和水热老化处理后的催化剂的氨气浓度进行测量,分析其存储氨能力。
Cu-SSZ-13分子筛催化剂是目前研究热度较高的一种催化剂,通过其的试验分析研究,可以让我们在柴油机SCR系统的实际应用中,通过对温度、氮氨比、催化剂状态等的控制提高其催化转化的性能,使其工作更高效。
关键词:柴机油;选择性催化还原;SCR催化器;SCR催化剂;NOx转化率
Abstract
The nitrogen oxides (NOx), particulate matter (PM), carbon monoxide (CO), and hydrocarbons (HC) contained in the exhaust gas emitted by diesel vehicles cause very serious pollution to the atmosphere, and also affect people's health and production. Life brings serious harm and inconvenience. As these problems become more serious, people are paying more and more attention to this problem. The state has formulated strict emission regulations, and more researchers are also involved in the research of diesel vehicle exhaust gas treatment. There are many methods for diesel exhaust treatment. One of the most effective technologies for reducing NOx emissions from diesel engines is urea selective catalytic reduction (Urea-SCR). This paper studies the system of Urea-SCR technology and designs part of the catalytic reaction. The influencing factors and ammonia storage characteristics of catalyst NOx conversion rate were studied by bench test of Cu-SSZ-13 molecular sieve. [资料来源:www.doc163.com]
Firstly, the diesel engine SCR technology is introduced in detail, including the composition of the SCR system and its working principle. Comparing the development of SCR technology at home and abroad, we can see that although our country started later than some countries such as Europe and the United States, with the continuous study and research, China's SCR technology is also developing.
Secondly, the design of the catalytic converter in the SCR system is mainly composed of a catalyst, a cushion, a casing, a flange and a temperature sensor, and is three-dimensionally modeled by Creo. The commonly used catalysts are vanadium-based catalysts, noble metal catalysts, metal oxide catalysts and molecular sieve catalysts. The catalyst used in the experiments in this project is copper-based molecular sieve catalyst (Cu-SSZ-13).
Finally, the performance test of Cu-SSZ-13 molecular sieve catalyst. First, by measuring the inlet and outlet concentrations of NO at different temperatures, the effect of temperature on NOx conversion rate is studied. Second, the nitrogen-ammonia ratio is changed to analyze the effect of different nitrogen-ammonia ratios on NOx conversion rate. The third is about catalysts. The ammonia storage characteristics were measured at 200 ° C for the ammonia concentration of the fresh catalyst and the hydrothermally aged catalyst, and the ammonia storage capacity was analyzed.
[版权所有:http://DOC163.com]
Cu-SSZ-13 molecular sieve catalyst is a kind of catalyst with high heat research. Through its experimental analysis, we can control the temperature, nitrogen-ammonia ratio and catalyst state in the practical application of diesel engine SCR system. Improve the performance of its catalytic conversion and make it work more efficiently.
Key Words:diesel engine oil; selective catalytic reduction; SCR catalyst; SCR catalyst; NOx conversion
[资料来源:http://doc163.com]




[资料来源:Doc163.com] 

目录
摘要 I
Abstract II
第1章绪论 1
1.1 背景介绍 1
1.2 汽车排放标准 2
1.3 国内外SCR技术的发展 3
1.3.1 国外SCR技术的发展 3
1.3.2 国内SCR技术的发展 4
1.4 研究内容和技术方案 4
1.4.1 研究内容 4
1.4.2 技术方案 4
第2章 SCR催化器设计 6
[资料来源:http://www.doc163.com]
2.1 SCR催化器结构 6
2.1.1 载体 6
2.1.2 催化剂 6
2.1.3 壳体 6
2.2 SCR催化器的设计与建模 7
2.2.1 催化器主体段设计 7
2.2.2 扩张(收缩)段设计 8
第3章 NH3-SCR技术催化剂介绍 9
3.1 催化剂介绍 9
3.2 催化剂分类 9
3.2.1 钒基催化剂 9
3.2.2 贵金属催化剂 9
3.2.3 金属氧化物催化剂 9
3.2.4 分子筛型催化剂 10
3.3 Cu基分子筛催化剂 10
第4章 Cu-SSZ-13催化剂试验 12
4.1 新鲜催化剂性能试验 12
4.1.1 试验数据处理 12
4.1.2 结果分析 12
4.2 新鲜和水热老化后的催化剂的储氨特性试验 13
4.2.1 试验数据处理 14
4.2.2 结果分析 15
[来源:http://www.doc163.com]
4.3 不同氮氨比对NOx转化率的影响 16
4.3.1实验数据处理 16
4.3.2结果分析 16
第5章总结与展望 18
5.1 全文总结 18
5.2展望 18
参考文献 19
致谢 20 [资料来源:http://Doc163.com]
